Bilocale in vendita

Reggio Nell'Emilia, Via Luigi Vanvitelli - Cadè
€ 132.000
Prezzo aggiornato
2 locali 2 locali
71 Mq 71 Mq
1 bagno 1 bagno

Bilocale in vendita

Reggio Nell'Emilia, Via Luigi Vanvitelli - Cadè

Descrizione annuncio

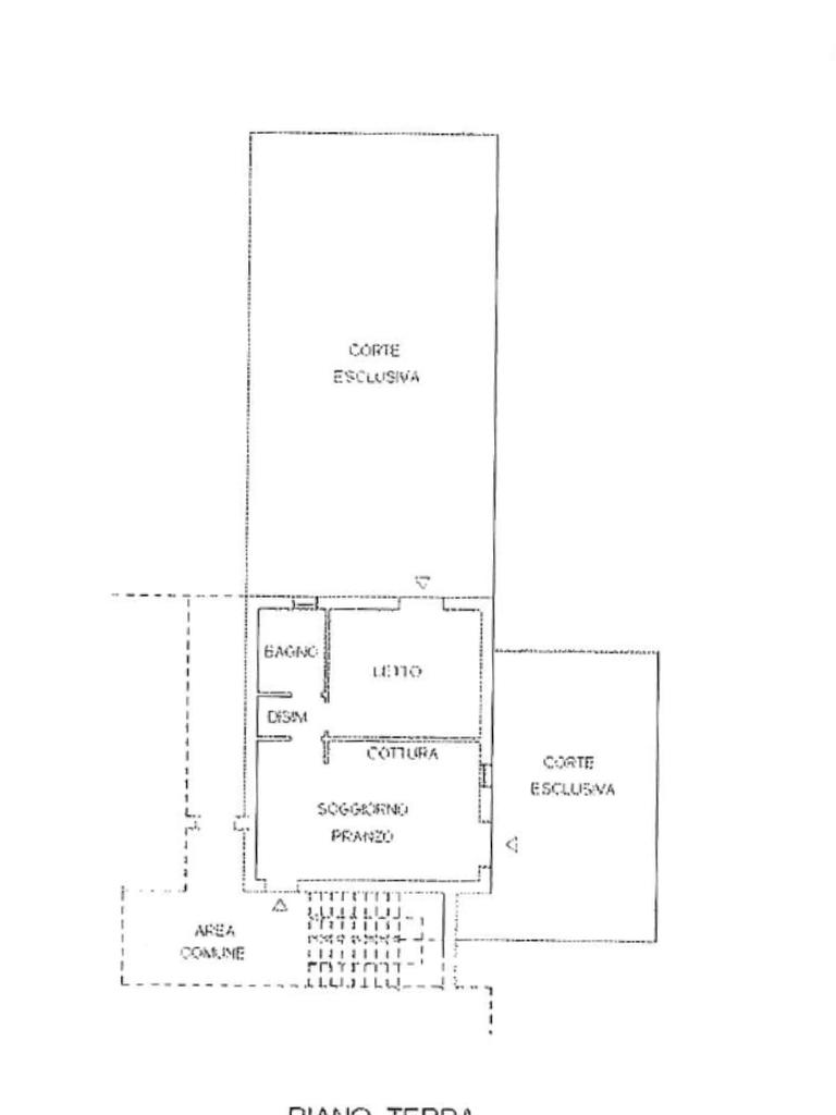
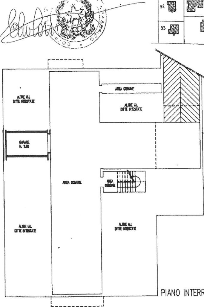
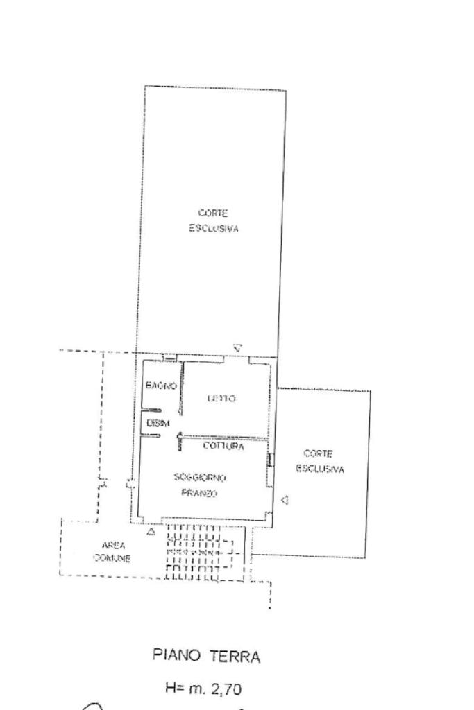
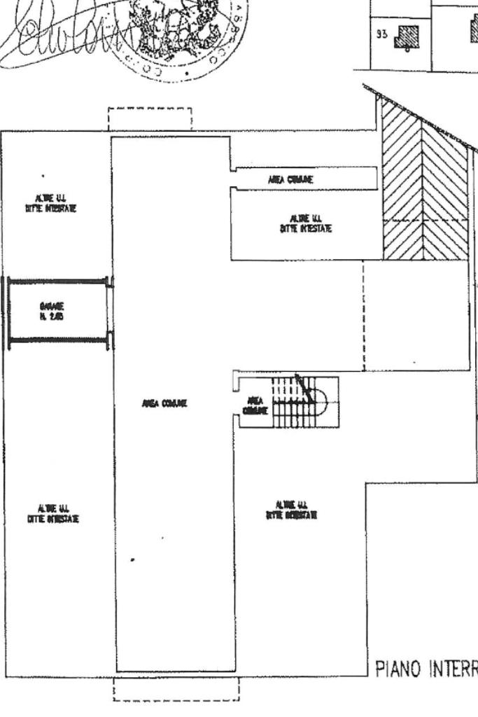
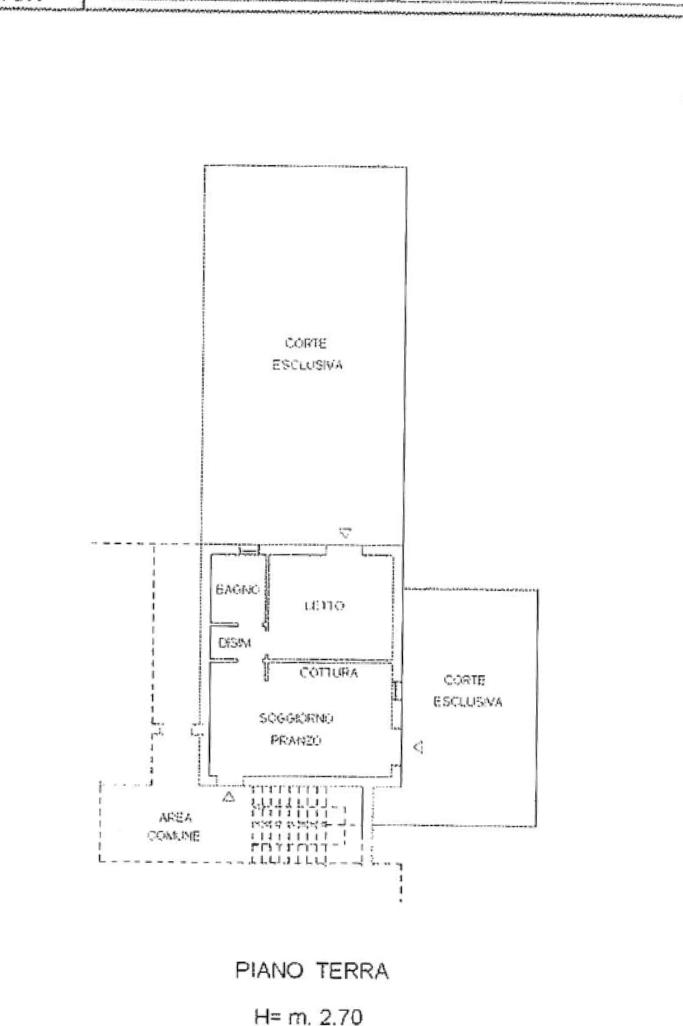
Nel tranquillo contesto di Cadè, nel comune di Reggio nell'Emilia, è disponibile un appartamento in vendita che offre comfort e praticità. Situato al piano basso di un edificio costruito nel 2000, l'immobile si estende su una superficie di 71 mq comm. L'appartamento è composto da due locali ben distribuiti, che includono una spaziosa camera da letto e un bagno funzionale. La zona giorno è luminosa e accogliente, ideale per momenti di relax. Un valore aggiunto è rappresentato dal giardino privato, perfetto per chi ama gli spazi verdi e desidera un angolo di tranquillità all'aperto. Completa la proprietà un comodo box auto, che garantisce praticità e sicurezza. Questa soluzione abitativa è ideale per chi cerca un ambiente sereno senza rinunciare alla vicinanza ai servizi essenziali.

Mostra tutto

Nelle vicinanze

Trasporto pubblico Trasporto pubblico
Cadè - Inc. Via dei Quercioli
Cadè - Inc. Via dei Quercioli
250 m
Trasporto pubblico
2,4 Km
Scuole Scuole
Scuola primaria statale Paola Valeriani
100 m
Scuola dell'infanzia statale Bruno Ciari
1,0 Km
Scuola primaria statale Vincenzo Ferrari
2,4 Km
Scuole
2,6 Km
Farmacia Farmacia
Farmacie Comunali Riunite
230 m
Farmacia
2,7 Km
Supermercati Supermercati
Conad Cella
2,8 Km
Bar Bar
Bar
2,4 Km
Bar sport
2,4 Km
Ristoranti Ristoranti
La Grande Mela
2,5 Km
Mostra tutto

Caratteristiche

Rif.:
61115114
Piano:
Terra con giardino
Box:
1
Camere da letto:
1
Arredamento:
Parziale
Condizionamento:
Autonomo
Mostra tutto
Prezzo Prezzo
€ 132.000
Rata mutuo Rata mutuo
€ 608 / mese
Spese annue Spese annue
€ 100
Proponi il tuo prezzoProponi il tuo prezzo

Classe Energetica

F
F
F
F
F
F
F
F
F
EP globale non rinnovabile:
569.02 kW h/m² anno
EP globale rinnovabile:
569.02 kW h/m² anno
EP invernale del fabbricato:
EP estiva del fabbricato:
Anno di costruzione:
2000
Riscaldamento:
Autonomo
Tipo impianto:
A radiatori
Tipo alimentazione:
Metano

Prezzo ridotto di €1 (4%%)

Ti interessa visionare l'immobile?

Fissa un appuntamento  Fissa un appuntamento

Richiedi informazioni

* Questi campi sono obbligatori

Calcola il tuo mutuo

Semplice e senza impegno
Anticipo

( % )
Mutuo

( % )

pochi semplici passi

inserisci i tuoi dati
Questionario completato
Grazie per aver richiesto un appuntamento senza impegno con un nostro Consulente del Credito e Assicurativo.

Hai inserito correttamente tutti i dati necessari e a breve riceverai una e-mail con un link da convalidare per inviare i tuoi dati.
Affiliato
Il Casale Srl
Via Luciano Romagnoli, 1/D 42123 Reggio Nell'Emilia (RE)

Il nostro staff


  • Benson Darko
    Affiliato

  • Alessandro Persona
    Affiliato
Via Luciano Romagnoli, 1/D 42123 Reggio Nell'Emilia (RE)
Zona: Rivalta-Coviolo-San Bartolomeo
Mostra su mappa
Orari: - LUNERDI - VENERDI: - DALLE ore 9.00 - 13.00. - - SABATO : - DALLE ore 9.00 - 13.00.
Affiliato
Il Casale Srl
Via Luciano Romagnoli, 1/D 42123 Reggio Nell'Emilia (RE)

2025 Tecnocasa Franchising S.p.A. - P. IVA 08365160152 - Via Monte Bianco 60/A 20089 Rozzano (MI). Ogni agenzia ha un proprio titolare ed è autonoma. Privacy policy | Policy utilizzo | Cookie policy