6 locali in vendita

Reggio Nell'Emilia, Appartamento Via Carlo Teggi - Codemondo
€ 265.000
6 locali 6 locali
146 Mq 146 Mq
1 bagno 1 bagno

6 locali in vendita

Reggio Nell'Emilia, Appartamento Via Carlo Teggi - Codemondo

Descrizione annuncio

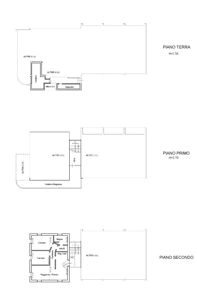
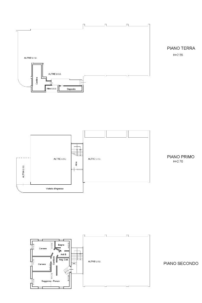
Codemondo: nel comune di Reggio nell'Emilia, si propone in vendita una soluzione abitativa unica nel suo genere. Questo appartamento, situato al piano primo e ultimo, si estende su una superficie di circa 146 mq Comm di cui abitazione di circa 132mq e offre sei locali ben distribuiti. La proprietà, costruita nel 2012, è dotata di due camere da letto, un antibagno e bagno con box doccia, cantina e un comodo garage doppio dotato di colonnina per la ricarica di auto elettrica. Tra le caratteristiche distintive, l'impianto di videosorveglianza garantisce sicurezza e tranquillità. L'efficienza energetica è assicurata dalla classe A/3, grazie alla presenza di una pompa di calore con controllo da remoto e un impianto fotovoltaico di 12 kW, corredato da una batteria di accumulo di 24 kW. L'aria condizionata completa il comfort abitativo, rendendo questa casa un'opportunità ideale per chi cerca modernità e sostenibilità in un contesto residenziale sereno.

Mostra tutto

Nelle vicinanze

Trasporto pubblico Trasporto pubblico
Codemondo
Codemondo
220 m
Reggio E. - Incrocio Via dell'Inferno
Reggio E. - Incrocio Via dell'Inferno
350 m
Codemondo
Codemondo
1,3 Km
Cavriago
Cavriago
2,8 Km
Ricariche auto elettriche Ricariche auto elettriche
Cavriago Dalla Chiesa | EnelX
2,4 Km
Conad Cavriago | EnelX
2,4 Km
CAVRIAGO Lenin | ENELX
2,6 Km
Cavriago Multiplo | EnelX
2,8 Km
Scuole Scuole
Scuola primaria San Bartolomeo
2,4 Km
Scuola dell'infanzia paritaria Gastinelli
2,4 Km
Scuola primaria statale Besenzi
2,6 Km
Scuola primaria statale Giuseppe Verdi (Pieve 1)
3,0 Km
Scuole
3,0 Km
Farmacia Farmacia
Farmacia comunale Codemondo
1,3 Km
Farmacia comunale Roncina
2,8 Km
Farmacia San Bartolomeo
2,8 Km
Supermercati Supermercati
La Collina
510 m
CONAD SUPERSTORE
2,6 Km
BioGold
2,6 Km
Il Gigante
2,7 Km
Supermercato Eurospin
2,9 Km
Negozi Negozi
Forno pasticceria F.lli Chiossi
3,0 Km
Bar Bar
Bar Tabacchi Mixer 2
1,0 Km
Bar
2,7 Km
Sosta Caffè
3,0 Km
Ristoranti Ristoranti
Ristoranti
1,0 Km
Osteria del Pescatore
2,0 Km
Osteria Doppio Litro
2,4 Km
Pantagruel
2,6 Km
Giusto Spirito
3,0 Km
Mostra tutto

Caratteristiche

Rif.:
61184091
Piano:
1 di 1 (Piano basso)
Box:
1
Camere da letto:
2
Arredamento:
Assente
Condizionamento:
Autonomo
Mostra tutto
Prezzo Prezzo
€ 265.000
Rata mutuo Rata mutuo
€ 1.259 / mese
Spese annue Spese annue
€ 600
Proponi il tuo prezzoProponi il tuo prezzo

Classe Energetica

A3
A3
A3
A3
A3
A3
A3
A3
A3
EP invernale del fabbricato:
EP estiva del fabbricato:
Anno di costruzione:
2012
Riscaldamento:
Autonomo
Tipo impianto:
A pavimento
Tipo alimentazione:
Pannelli

Ti interessa visionare l'immobile?

Fissa un appuntamento  Fissa un appuntamento

Richiedi informazioni

Clicca su Leggi per aprire l'informativa
* Questi campi sono obbligatori

Calcola il tuo mutuo

Semplice e senza impegno
Anticipo

( % )
Mutuo

( % )

pochi semplici passi

inserisci i tuoi dati
Questionario completato
Grazie per aver richiesto un appuntamento senza impegno con un nostro Consulente del Credito e Assicurativo.

Hai inserito correttamente tutti i dati necessari e a breve riceverai una e-mail con un link da convalidare per inviare i tuoi dati.
Affiliato
Il Casale Srl
Via Luciano Romagnoli, 1/D 42123 Reggio Nell'Emilia (RE)

Il nostro staff


  • Benson Darko
    Affiliato

  • Francesca Frassani
    Collaboratrice

  • Marcello Salvarani
    Collaboratore

  • Alessandro Persona
    Affiliato
Via Luciano Romagnoli, 1/D 42123 Reggio Nell'Emilia (RE)
Zona: Rivalta-Coviolo-San Bartolomeo
Mostra su mappa
Orari: - LUNERDI - VENERDI: - DALLE ore 9.00 - 13.00. - - SABATO : - DALLE ore 9.00 - 13.00.
Affiliato
Il Casale Srl
Via Luciano Romagnoli, 1/D 42123 Reggio Nell'Emilia (RE)

2026 Tecnocasa Franchising S.p.A. - P. IVA 08365160152 - Via Monte Bianco 60/A 20089 Rozzano (MI). Ogni agenzia ha un proprio titolare ed è autonoma. Privacy policy | Policy utilizzo | Cookie policy